
Ozark Waterfront
Remodeled Residence 3,001 to 6,000 square feet Ozark Waterfront Resources The owners of this early-2000s home at the Lake of the Ozarks came to the table with little direction other
Bath
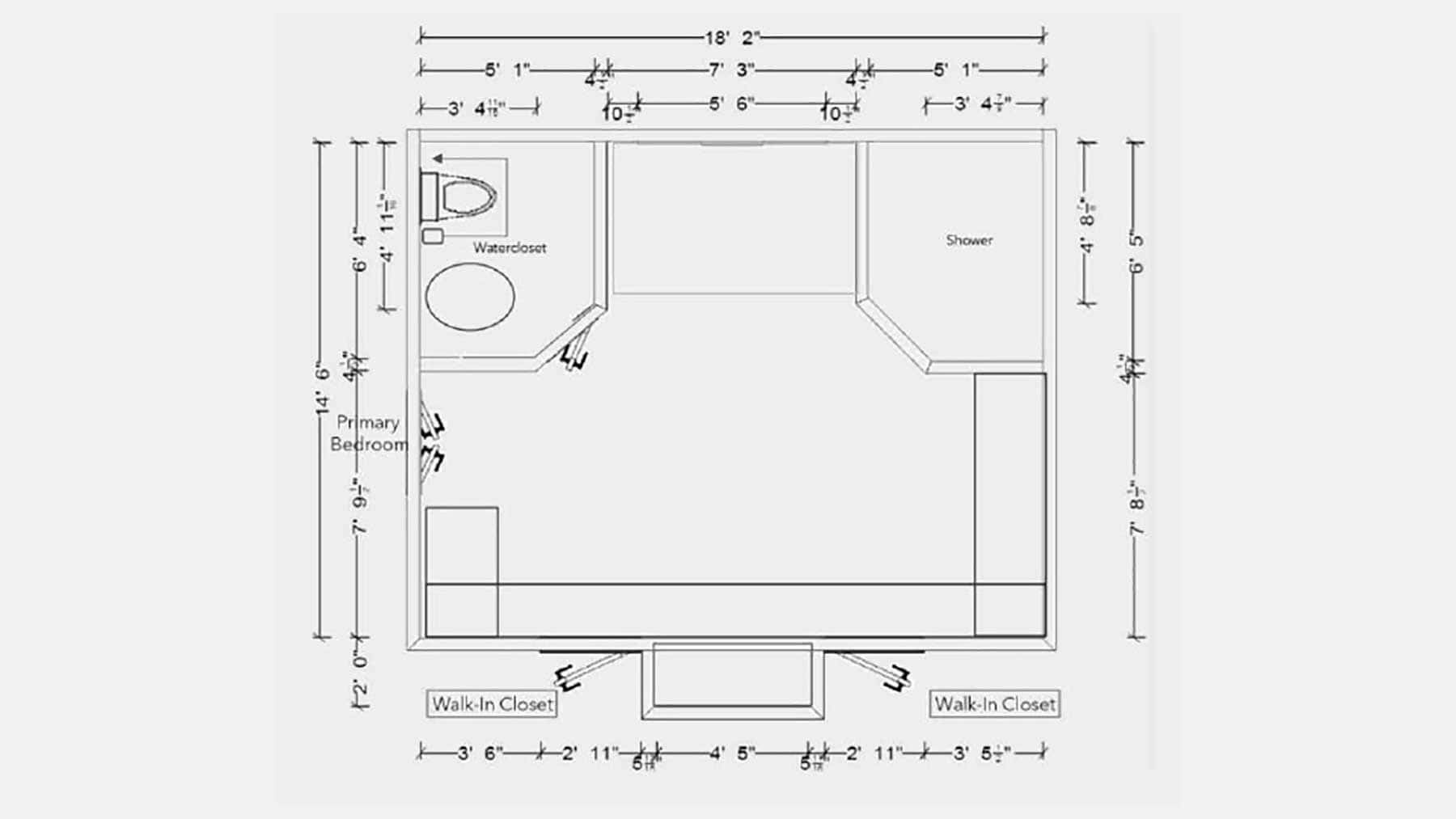
KCBR’s clients envisioned a stunning, elegant sanctuary to unwind in after a long day. Whether it was working with various flooring materials or the location-specific items their clients requested, the team devised clever solutions to create the bathroom of their clients’ dreams. During construction, KCBR discovered that the existing mortar bed had to be removed, so they needed a solution that provided a uniform floor level. To achieve this, their team framed the bathroom flooring to match the bedroom and closet. Another obstacle was the freestanding, air-jetted chromatherapy and aromatherapy bathtub. Ensuring the tub was powered and running properly relied on finding the right location to house the mechanical components. The original plans placed the tub’s mechanics too far away. Therefore, to avoid needing an extension hose and affecting the tub’s performance, they moved the motor and pump to a more suitable location.
Their clients’ specific storage needs required innovation, too. The linen cabinet’s prominent placement was also a potential focal point. So, to create the storage their clients needed and to maintain the aesthetic of the space, they created a custom built-in look for the cabinet by using creative carpentry and added tinted bronze mirrors to bring moodiness to the space.

Remodeled Residence 3,001 to 6,000 square feet Ozark Waterfront Resources The owners of this early-2000s home at the Lake of the Ozarks came to the table with little direction other

Custom Build 6,001 to 10,000 square feet Catalina Classic This custom home is meant to grow with a young family of five. Wanting it to feel timeless and classic without

Multifamily Residential California Dream Remodel The project’s biggest challenge was planning for the company’s current and future needs. Ultimately, the company needed an office for their team, a warehouse for

Custom Build 6,001 to 10,000 square feet Leawood Custom Build Residence Riffing off a coastal-style home that inspired them, the homeowners sought a well-appointed retreat from life’s hectic pace for

Interior Project: Single Space Cedar Creek Speakeasy Picturing an opulent space with speakeasy vibes, the design team sought to transform the clients’ lower level into a moody, 1920s-inspired retreat with

Model Home 3,001 to 6,000 square feet The Un-Builder-Grade Model Though working within a new home’s standard budget, the designers beautifully integrated many unique elements throughout this model home. From

Design Detail Steeped In Tradition For this unique project, Orion Design and Remodel Moore teamed up to transform an outdated dining room into a more modern space that achieves two

Custom Build 3,001 to 6,000 square feet Custom Home at Meadowbrook Park Initiated by a request to design the client’s next traditional home, this project culminated in a custom home

Outdoor Space Intimate Poolside Retreat For their new outdoor space, this project’s clients wanted a design that would provide privacy and appear as though it had been there for years.
