
Midland Lofts
Multifamily Housing Midland Lofts Nestled in Kansas City’s vibrant Power & Light District, Midland Lofts redefines urban living through the thoughtful transformation of a 1927 landmark. Formerly an office building
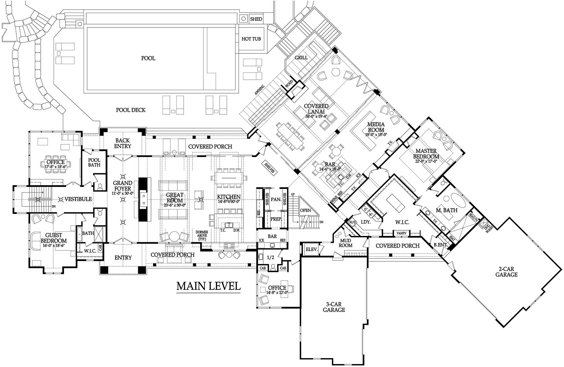
Custom Home over 10,000 Sq. Ft.
This home was envisioned as a sanctuary for a couple who cherishes both lively gatherings and quiet evenings at home. Designed to merge indoor and outdoor living, it features an open layout that encourages connection. A spacious kitchen serves as the heart of the home, while an expansive outdoor area—complete with a kitchen, pool, fire pit and bocce ball court—extends the living experience beyond the walls.
Balancing modern design with rustic textures, the home incorporates white oak, walnut and reclaimed barn beams. These 100-year-old beams, each weighing 800 pounds, were carefully installed to bring warmth and authenticity to the space. Thoughtfully planned lighting and layered furnishings enhance the atmosphere, ensuring that each space feels welcoming. With breathtaking views, expertly curated materials and intentional design, the space embodies the art of gathering and the beauty of home.
Countertops: Kenny’s Tile Fireplace(s): Midwest Fireplace Golf Simulator: High Definition Golf Elevator: KC Lift & Elevator Plumbing Fixtures: Kohler Signature, Ferguson Home Glass Work: Fountain Glass Garage Doors: Overhead Door Landscaping: Next to Nature Lighting: Wilson Lighting Smart Home Automation: Simplicity Stone Work: Builder Stone Tile: Kenny’s Tile Pool: Complete Pools Sauna: Sunlighten Cabinets: Cabinets by King Wood Flooring: Kenny’s Hardwood Carpet: Carpet Source Metal Work: Bill Ruckdeschel Trim Material: Builders FirstSource Foundation: Johnson County Basement Concrete: Epic Concrete Excavating: Cutting Edge, Schlagle Trucking Lumber Material: Premier Building HVAC: United Heating and Cooling

Multifamily Housing Midland Lofts Nestled in Kansas City’s vibrant Power & Light District, Midland Lofts redefines urban living through the thoughtful transformation of a 1927 landmark. Formerly an office building

Outdoor Space & Landscape English Garden The design team embraced tradition and craftsmanship to reimagine this formerly overgrown backyard into a structured yet inviting English garden. The vision: a balanced,

Remodeled Residence 3,001 to 6,000 sq. ft. Old Money Vibes Trove Homes brought modern sophistication to what was once a dated estate in Hallbrook Farms. By reworking layouts and adding

Bath Serenity Blue This project harmoniously blends nature-inspired hues and modern design. Custom cabinetry and a quartz vanity countertop enhance the space, while clever storage solutions create a serene, clutter-free

Bath Weekend Luxury Bath This project design team transformed a builder-grade outbuilding into a “weekend-fun” property for their longtime clients. Their favorite space? This primary bath. Challenges included addressing the

Commercial Space NOKA This redefined dining scene feels truly one-of-a-kind. Designer Celeste Antoine’s vision was to create a beautifully imperfect restaurant, blending creativity and innovation to deliver an upscale, immersive

Interior Project | MultiRoom A Marbled Mood This kitchen and hearth project revolves around the striking presence of Brazilian Arabescato marble. The kitchen island, with its bold waterfall edge, seamlessly

Remodeled Residence 3,001 to 6,000 sq. ft. Hawk Heights A collaboration brought to life this residence that exudes both style and comfort. Inspired by the client’s refined sensibilities, the home

Outdoor Space & Landscape Southern Charm For a family that thrives in the outdoors, an ordinary backyard simply wouldn’t do. The project team took on the challenge of transforming this
