
Castle Library Catwalk
Design Detail Castle Library Catwalk In a home where literature and legacy converge, the turret library’s striking metal catwalk offers a passage not only through books but through time itself.
Interior Project | Single Space
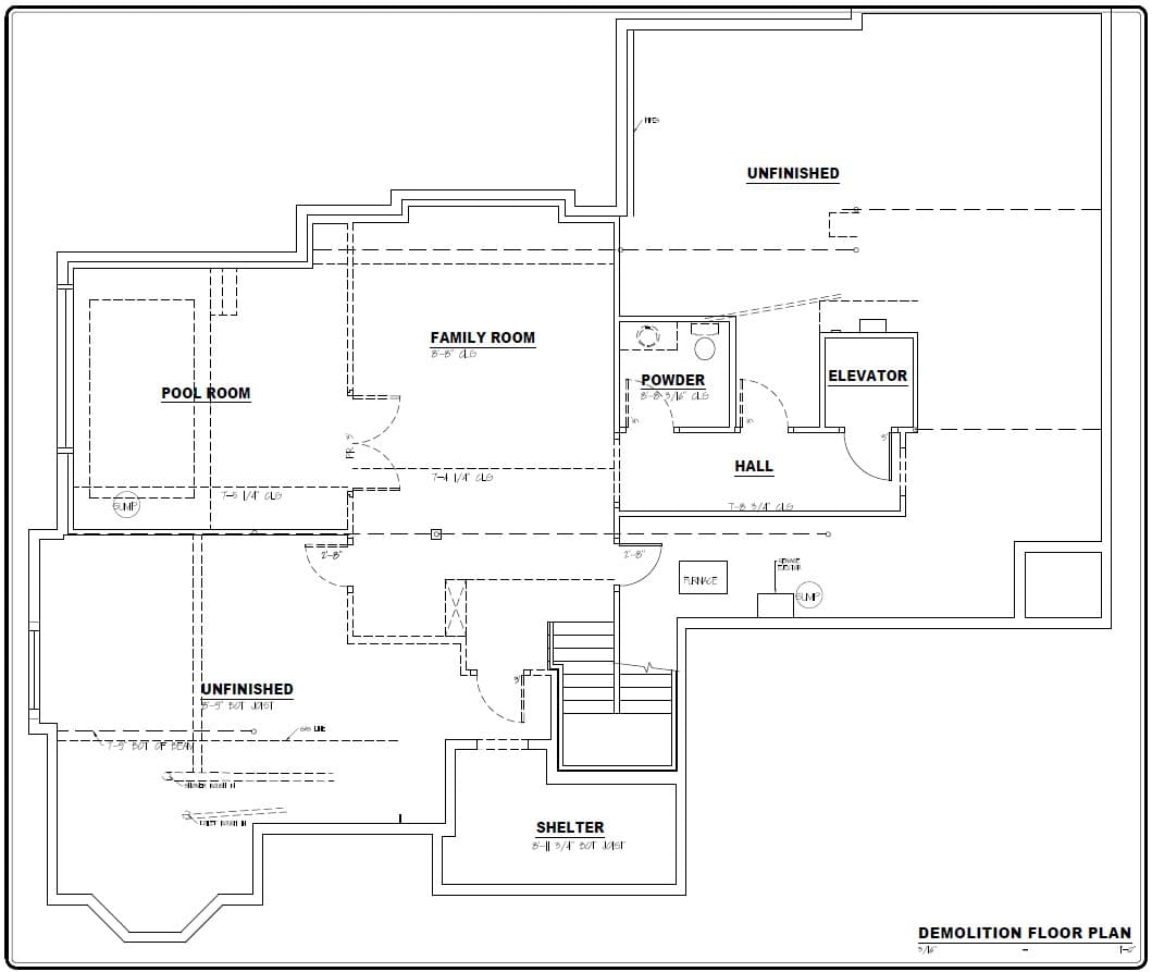
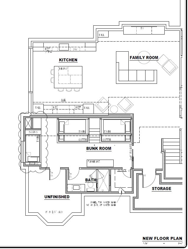
A decade after building their home, the homeowners entrusted Schloegel Design Remodel to elevate their unfinished basement to the same impeccable standard as the rest of the house. Their wish list included a bunk room, a full kitchen, a wine room reminiscent of a speakeasy and an array of custom-built details.
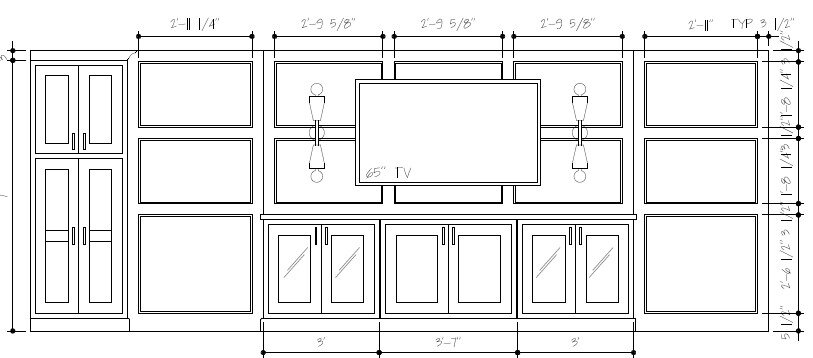
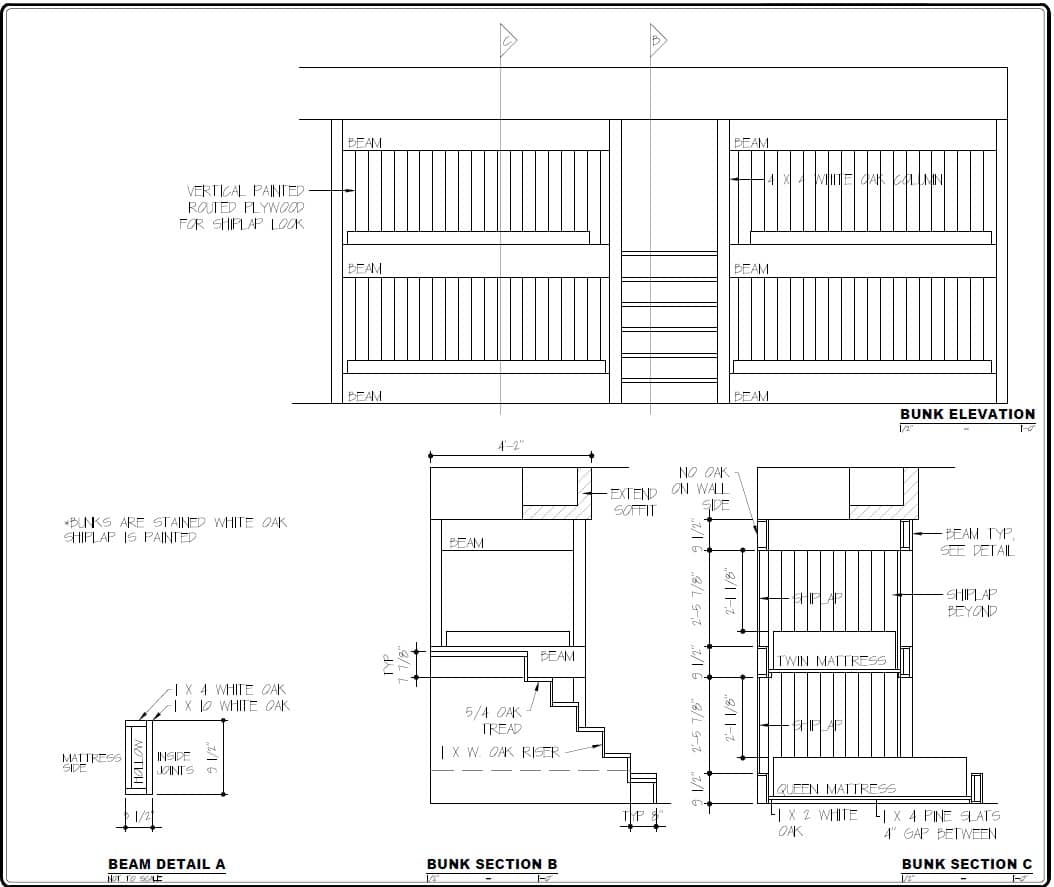
The transformation was anything but ordinary. The bunk room, designed for ultimate sleepovers, accommodates four beds in a creative L-shaped layout, complete with built-in bookshelves and paneling. The kitchen, a stunning balance of practicality and beauty, features quarter-sawn white oak cabinetry, honed marble countertops and a seamless full-height backsplash achieved through a remarkable installation effort.
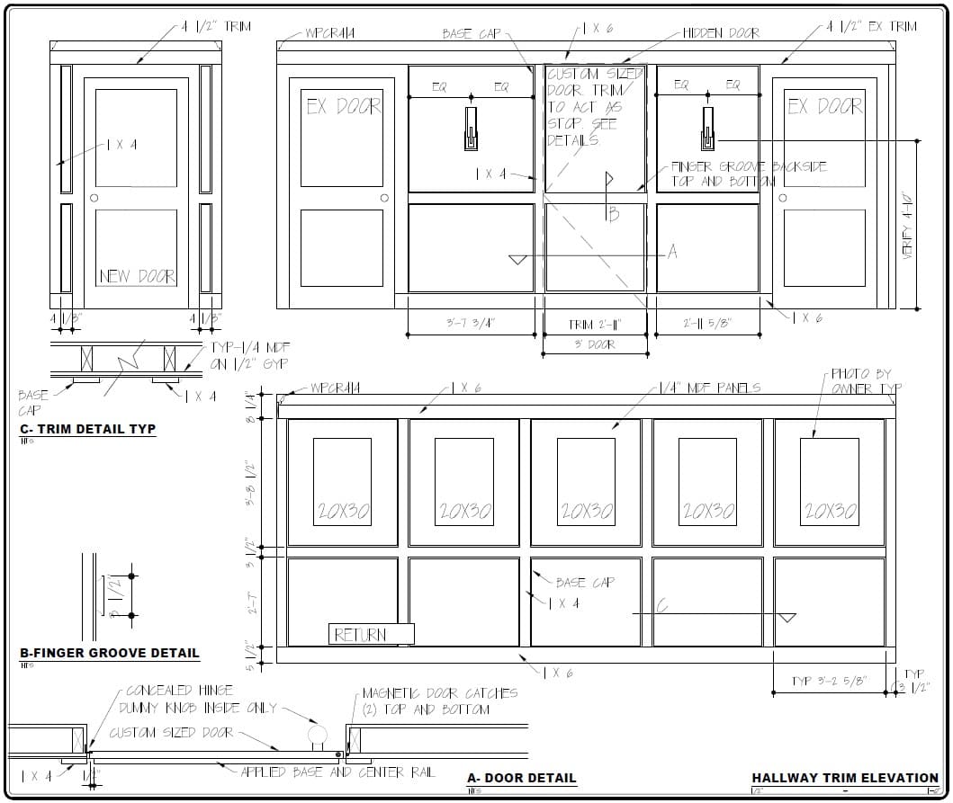
The pièce de résistance is the hidden wine room. Concealed behind a flush-paneled door with a brass bear-head handle, it embodies an air of intrigue. Dark, moody and exquisitely detailed, this intimate space now showcases a prized wine collection, completing a renovation that is as refined as it is inviting.
Appliances: Factory Direct Appliance Cabinets: WW Wood Cement Work: KC Coring Countertops: Dimensional Stoneworks Doors and Trim: KC Millwork Drywall: Tom Lee Drywall & Plaster Electrician: Jason Wright Electric Insulation: Hayes Insulation Hardwood Floor Installation: SVB Wood Floors HVAC: City Wide Heating & Cooling
Lumber: McCray Lumber Painter: R & S Painting Plumber: Tschirhart Plumbing Plumbing Fixtures: Grandview Winnelson; Neenan Company Shower Door: Westport Glass Tile: Central States Tile Tile Installation: Eddie Cummings Tile Co. Wallpaper Installation: The Wallpaper Guy Window Well Caps: Stony Point Hardscape

Design Detail Castle Library Catwalk In a home where literature and legacy converge, the turret library’s striking metal catwalk offers a passage not only through books but through time itself.

Interior Project | MultiRoom Koselig Comfort Home This first-floor renovation reinvented the kitchen, hearth, living room, entryway, laundry and primary bath, embracing Scandinavian design influenced by the homeowners’ Norwegian heritage.

Interior Project | MultiRoom Leawood Refresh This Old Leawood home, beautifully updated in its previous flip, provided a strong foundation but lacked the character its new owners craved. Nest Interiors

Kitchen Fly Me to the Lake When the owners of this lakeside home decided to update their 1970s kitchen, the goal was clear: modernize both form and function while embracing

Outdoor Space & Landscape Riverside Resort Perched on a dramatic landscape, this contemporary retreat balances bold architectural elements with organic textures, transforming a rugged site into a multi-tiered sanctuary. Originally

Interior Project | MultiRoom Wagner Residence MP360 Design + Build enhanced this home with a contemporary aesthetic, improving its livability for a growing family and frequent guests from Iceland. A

Custom Home 3,001 to 6,000 Sq. Ft. Equestrian Estate This home blends luxury with practicality. Situated on a working horse farm, this residence is tailored to accommodate both the owners’

Custom Home 3,001 to 6,000 sq. ft. Miami County Farmhouse South of the city, this Miami County farmhouse balances heritage and modern comfort. Inspired by the weathered stone barns scattered

Kitchen Bringing in the Spanish Light This kitchen renovation centered around the essence of the Spanish-style home being preserved while bringing in light, space and modernity. The challenge was to
