
Leawood Refresh
Interior Project | MultiRoom Leawood Refresh This Old Leawood home, beautifully updated in its previous flip, provided a strong foundation but lacked the character its new owners craved. Nest Interiors
Kitchen
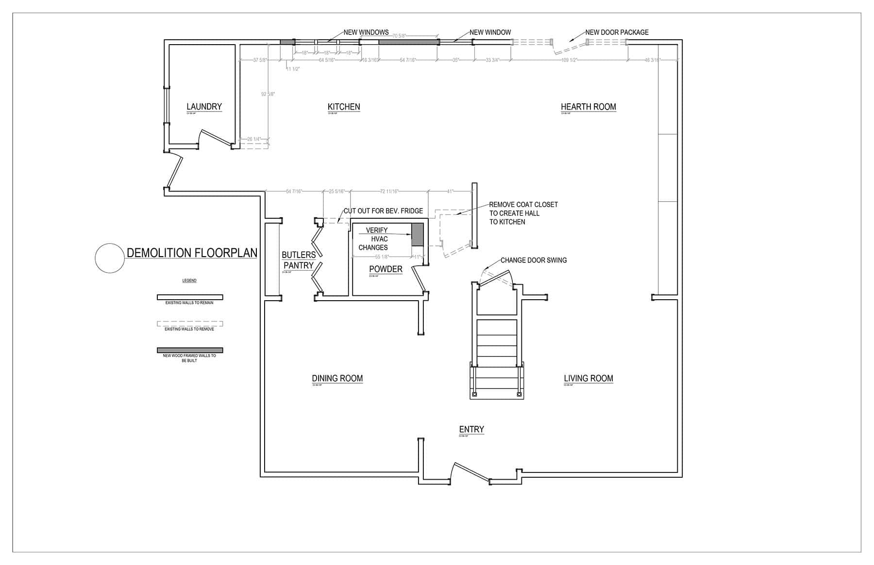
The vision for this space was clear: create a kitchen with enhanced function while honoring the warmth and depth of the home’s traditional character. Surrounded by antiques and rich wood tones, the clients sought a space that would feel integrated, not out of place.
The project presented several challenges, including a narrow layout and the need for new windows without sacrificing storage. Removing a dysfunctional desk area and expanding the kitchen allowed for a larger island, which became the heart of the space. The team relocated the fridge and refined the cabinetry to maintain flow and balance.
Rich materials, like quarter-sawn oak for the island and a custom copper range hood, bring texture and warmth. A carefully selected marble backsplash adds a pop of color, while a deep pantry and bar area offer both form and function. The result is a kitchen that feels both timeless and fresh—rooted in tradition yet perfectly tailored for modern living.
Cabinetry: Parks Cabinets Countertops: CKF; Triton Stone Painting: Fritz Painting & Drywall Plumbing Fixtures: Grandview Winnelson Tile: Urban Tile & Stone Cabinet Hardware: Top Knobs Lighting: Wilson Lighting Appliances: GE Cafe, Alexander & Ray’s Photo Staging: Pryde’s Old Westport

Interior Project | MultiRoom Leawood Refresh This Old Leawood home, beautifully updated in its previous flip, provided a strong foundation but lacked the character its new owners craved. Nest Interiors

Custom Home 3,001 to 6,000 Sq. Ft. Insta Influencer @mallorychristineandersen This custom home collaboration achieved a balance of beauty, serenity and practicality for the client. Soft, natural colors were paired

Outdoor Space & Landscape Lenexa Luxury Crafted for the prestigious Artisan Home Tour last summer, this home is a striking blend of elegance and function. This refined retreat beautifully integrates

Commercial Space Advent Health Cancer Institute Thoughtfully curated with biophilic design, the art collection blends warmth and hope, offering comfort to patients and visitors alike. Every detail reflects the power

Design Detail Hawk Heights: Custom Bookcases The custom bookcases framing the office are a study in precision, balancing utility with a strikingly minimal aesthetic. These bookcases serve as a showcase

Design Detail Hawk Heights: Stair This newly designed staircase transforms a challenging architectural space into a refined, light-filled focal point. This striking stairway enhances both function and form within the

Interior Project | Single Space A Storied Sanctuary In a home filled with light, one space stands apart—a dramatic turret library, rich in history and charm. This European castle-inspired alcove

Custom Home 3,001 to 6,000 Sq. Ft. Traditional Low Country, Coastal Style In the exclusive gated community of Loch Lloyd, this custom residence reflects a blend of traditional low country

Model/Speculative Home 3,001 to 6,000 sq. ft. Summit House This home merges modern design with zen-inspired elements. The focus on natural materials was paramount, with countertops and tiles sourced from
