
The Un-Builder-Grade Model
Model Home 3,001 to 6,000 square feet The Un-Builder-Grade Model Though working within a new home’s standard budget, the designers beautifully integrated many unique elements throughout this model home. From
Interior Project: Multi-space
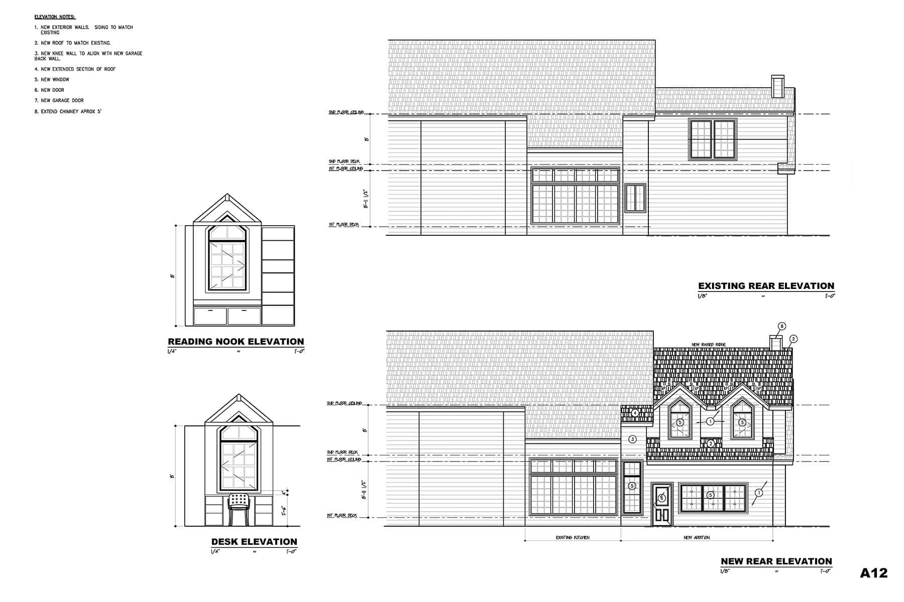
This renovation began with a kitchen update and a third-stall garage addition that eventually grew into an opportunity the owners couldn’t pass up. The expansion created space for the kitchen, a nook for a desk area in the upstairs dormer and—the most exciting of them all—a themed play space for the grandkids based on The Chronicles of Narnia, complete with access through an antique French armoire. This magical space features custom-designed cabinetry, walnut parquet floors and a mural showcasing a specific scene from the movie. The hideaway also includes porthole windows, timber framing and a private loft.
At the outset of the kitchen project, the clients knew they wanted a unique gold edge around navy inset cabinets paired with the famous red knobs on a Wolf range. The design team guided the clients through the process to find the perfect design tailored to their preferences and lifestyle.
The kitchen redesign ultimately overcame its cramped, U-shaped layout with the expansion, allowing for a more open and functional culinary space. The focal point is the 48-inch Wolf gas range and custom hood on one wall, complemented by a large cabinet run. The addition of an oversized island provides balance, flow and ample counter space. Inspired by images presented by the client, the kitchen’s new aesthetic focuses on a crisp yet timeless feel with a classic touch—namely, the gold-edged details, the white perimeter cabinets and the dark-blue accent cabinets and island base.
The blend of traditional and modern elements, accented with bespoke details and thematic designs, reflects a harmonious and personalized approach to the home’s overall aesthetic.
Engineer: Bob D. Campbell & Co. Appliances: Factory Direct Appliance Cabinets: Crestwood Countertops: Cambria Fabrication: CKF
Flooring: Kimminau Painter: R&S Painting Plumbing Fixtures: Kohler Signature Store by First Supply Roofing: Vaught Roofing To-the-Trade Showrooms: ProSource Wholesale; Neenan Windows: Marvin via KC Millwork

Model Home 3,001 to 6,000 square feet The Un-Builder-Grade Model Though working within a new home’s standard budget, the designers beautifully integrated many unique elements throughout this model home. From

Multifamily Residential California Dream Remodel The project’s biggest challenge was planning for the company’s current and future needs. Ultimately, the company needed an office for their team, a warehouse for

Multifamily Residential CORE Apartments NorthPoint Development’s ultimate goal was to create a luxurious, multifamily housing community along the iconic Berkley Riverfront, reflecting the area’s history and character. In collaboration with

Bath Spa-like Guest Bath During this remodeling project, the project team was charged with creating a spa-like atmosphere in the homeowners’ guest bathroom, all while maintaining cohesion with the home’s

Commercial Design Flooring Is Art and a Gallery to Prove It The project team’s vision for the featured artwork at Leawood Aquatic Center was to create blown-glass art that reflects

Remodeled Residence up to 3,000 square feet Vintage Vibe The homeowners’ vision was to update their prized Don Drummond home for modern living while preserving its mid-century style. Like most

Model Home 3,001 to 6,000 square feet The Barolo As one among four other model homes featured in the community’s model row, this home needed to stand out. Its classic,

Remodeled Residence 3,001 to 6,000 Square Feet Town & Country Estates After languishing on the market for quite some time, this home inspired a buyer with its atrium as a

Outdoor Space Platte City Oasis Various entertainment zones create a complete at-home resort experience in this custom outdoor project. The infinity edge of the pool—stretching more than 80 linear feet—is
