
ELEMENTAL
Custom Build 3,001 to 6,000 square feet Elemental Embodying the spirit of the Modern Prairie architectural style, this home eschews excessive ornamentation in favor of various geometric shapes. It also
Kitchen
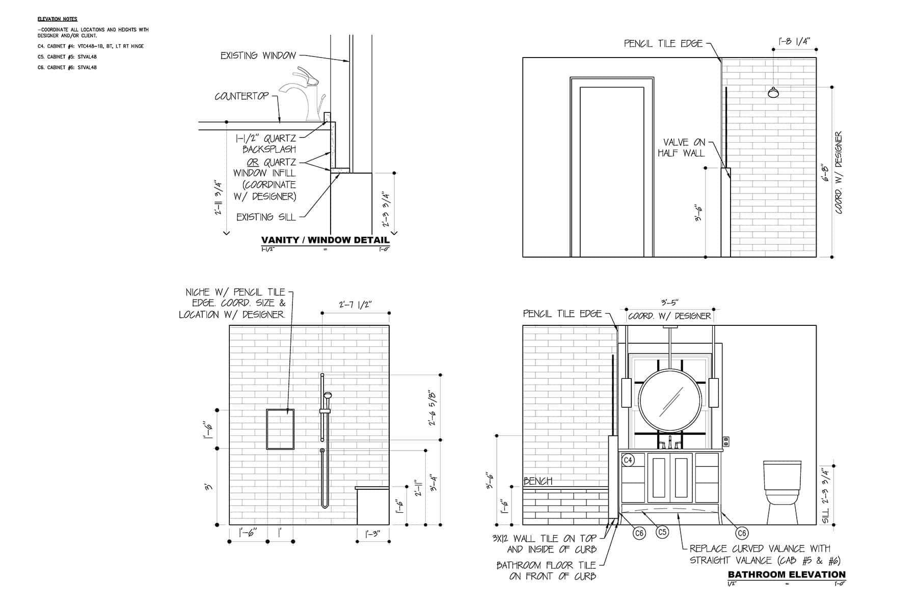
The young clients were enamored by their home’s charming Gothic archways, timeless built-ins, original wood doors and stunning floors. Having cherished this historical gem for a decade, they decided it was time to infuse their personal style and tailor the space to suit their evolving lifestyle. Their foremost desire was a kitchen where they could relish cooking without constantly bumping into each other. They also sought to eliminate the open-faced temporary hallway shelves, making ample storage a crucial aspect of the new design. Preserving the home’s 1926 charm was equally paramount to them, so they aimed for a kitchen that seamlessly blended in with the home’s storied aesthetic.
The design-build team’s challenge was incorporating the client’s wishlist while remaining within the existing footprint. The new kitchen removed the compartmentalized areas, improving the overall flow and function. New windows and an exterior door let in tons of natural light; what’s more, their improved placement made way for the addition of a full powder bathroom, which now sits directly off the kitchen.
Opening the wall between the dining room and kitchen breathed new life into the home. The selected finishes—such as the Shaker-style white inset cabinets—are consistent with the home’s original design. They chose stained walnut cabinets for the island, paired with creamy white quartz countertops that gracefully warm the space with delicate, golden-hued veining. Gold hardware and plumbing fixtures add a touch of elegance, further enhancing the kitchen’s aesthetic.
Appliances: Factory Direct Appliance Cabinets: Shiloh Cabinetry Countertops: Corian Fabrication Company: SCI – Surface Center Interiors Flooring: Quality Hardwood Flooring Lighting Fixtures: Olde Brick Lighting Painter: Total Pro Interior Painting Plumbing Fixtures: Delta Roofing: Vaught Roofing Company To-the-Trade Showrooms: ProSource Wholesale; Grandview Winnelson Wall Coverings: Cathy’s Wallpapering Windows: Marvin Windows & Doors

Custom Build 3,001 to 6,000 square feet Elemental Embodying the spirit of the Modern Prairie architectural style, this home eschews excessive ornamentation in favor of various geometric shapes. It also

Kitchen Tudor Treat In this Tudor renovation, the clients were open to changes but did not want to eliminate any existing walls on the main level, as they enjoyed the

Custom Build 6,001 to 10,000 square feet The Wolf Ridge Project The vision for this custom home revolved around the client’s desire for privacy, warm contemporary design and the ability

Outdoor Space Platte City Oasis Various entertainment zones create a complete at-home resort experience in this custom outdoor project. The infinity edge of the pool—stretching more than 80 linear feet—is

Remodeled Residence up to 3,000 square feet Vintage Vibe The homeowners’ vision was to update their prized Don Drummond home for modern living while preserving its mid-century style. Like most

Bath Monochromatic Master For this bathroom remodel, Little Black Dresser Interiors added monochromatic tile with black-and-white Zellige subway tile. On one wall, the tile lays in a unique striped pattern

Bath Wallstreet Residence Looking to remodel a suburban-like bathroom, the homeowners hired the project team to transform their condo’s primary bathroom into an elegant, contemporary space commensurate with the rest

Model Home 3,001 to 6,000 square feet The Roosevelt The Roosevelt was purposefully designed to have a different feel than other model homes in the Kansas City market. The design

Interior Project: Multi-space Tuscan Transformation This stunning home may have been tastefully decorated in the past, but the heavy woodwork, dark Tuscan-inspired interiors and wrought-iron lighting sorely needed a modern-day
